

Есть ли идеальный профиль для остекления балкона? Одновременно прочный, недорогой, и чтобы сберегал тепло? К сожалению, ничего идеального не бывает. Но есть профиль, который для многих является золотой серединой, или «тем, что я давно искал». Это пластиковые армированные системы slidors.
к содержанию ↑
Почему slidors подходит для России
Slidors – это раздвижной профиль из пластика эконом-класса. Чтобы было понятнее, он нечто среднее по качеству и характеристикам между пластиковым профилем КВЕ и алюминиевым профилем provedal. То есть легче первого и теплее второго. Правда, есть у него и минус. Он недостаточно теплый для квартиры или офиса, ведь относится к холодно-теплому остеклению. Поэтому им остекляют нежилые помещения, в том числе – балконы и лоджии.


В материале “Остекление холодными профилями” вы подробнее узнаете о теплозащитных свойствах профиля Slidors. А также: какие еще профили относят к холодному остеклению и сколько они стоят.
Если вы собираетесь остеклять балкон в первый раз, возможно, вам потребуется разрешение. В каких случаях его нужно получать и куда для этого обращаться, смотрите по ссылке: https://oknanagoda.com/balkony-lodzhii/yuridicheskie-voprosy/razresheniye-na-ostekleniye.html
Однако, когда Slidors прибыл к нам из Южной Кореи, он буквально сразу полюбился россиянам. И вот почему.
к содержанию ↑
Преимущества профиля slidors:
1. Как и любой профиль, он защитит ваш балкон от шума, грязи и пыли. Однако сделает это лучше алюминиевого. Причина тому – щеточные уплотнения с дополнительной пластиковой прокладкой, которые устанавливаются между секцией и профилем с двух сторон.
2. Другая особенность профиля Слайдорс в том, что он подойдет абсолютно для любого окна на вашем балконе – будь оно 2 метра в высоту или овальной формы. Из всех профилей только этот способен на подобные «фокусы».
-


- Slidors используют для остекления беседок, веранд и т.д.
-


- Пластиковый профиль Slidors выглядит симпатичнее алюминиевого профиля
-


- У Slidors бывают створки даже таких внушительных размеров
3. Еще один плюс системы в том, что створки могут раздвигаться в любом порядке. При этом несколько из них вы можете сделать статичными. А еще, благодаря уникальному раздвижному механизму, окна не заледенеют даже в самый жуткий мороз. И вы без труда их откроете.
4. Slidors защитит ваш дом от воров и комаров. Надежный серповидный замок и филингпис (пластиковый элемент между створками) помешают проникнуть внутрь взломщикам, а москитная сетка – комарам. Это еще не все: москитная сетка свободно передвигается по всей площади окна по дополнительному рельсу.
5. Профиль, при желании, ламинируют цветной пленкой. Поэтому, если по внешнему виду вам больше нравится дерево, вы можете взять slidors с древесным цветом – получится так же красиво, но дешевле.
6. Пластиковые профили в сравнении с алюминиевыми всегда лучше защищают от холода.
к содержанию ↑
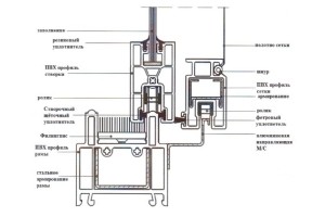
Устройство профиля slidors
Главная фишка профиля slidors в том, что он армирован (укреплен) металлом. Армирование происходит так: в основной – пластиковый – профиль вставляют металлический каркас, который придает всей конструкции прочность. Так что вы можете не волноваться, что при сильном ветре или другом воздействии она прогнется.


Составляющие системы Слайдорс
Открывается такой профиль по принципу шкафа-купе – секции двигаются по дорожкам на роликах. Правда есть еще и статичные створки, которые, как указывалось ранее, можно чередовать с движущимися в абсолютно любом порядке.
Что касается остекления, вы можете установить как одно стекло (толщиной от 3 до 6 мм), так и одинарный стеклопакет шириной 14 мм. Что для вас лучше – решать вам. Но если вы хотите более теплую атмосферу на балконе, то выбирайте стеклопакет. Его сопротивление теплопередаче в 3-3,5 раза выше, чем у одного стекла.
к содержанию ↑
Цены на остекление slidors
Удивительно, но при всех своих достоинствах slidors немногим дороже алюминиевого. Цена профиля из трех створок (3000/1500 метров) в Москве – 22-25 тысяч рублей. Это если одно стекло, со стеклопакетом – на 4 тысячи дороже. В цену уже входят доставка, монтаж, и разные козырьки с отливами. А если вы монтируете профиль сами – то выйдет аж в 2 раза дешевле!


Стоимость и типы остекления 3-х метровых балконов смотрите в данной статье.
Также на сайте вы можете узнать об особенностях и стоимости остекления лоджий размером 6 метров.
к содержанию ↑
Особенности монтажа системы slidors
Монтаж slidors происходит достаточно легко – шуруповертом и отверткой. Но на практике мало кто берется устанавливать его самостоятельно – вызывают мастеров. С одной стороны, это вполне логично, ведь мастер на то и мастер, что знает все особенности установки. С другой, и за ним иногда нужен глаз да глаз. Чтобы ваши глаза ничего не просмотрели, дадим несколько советов.
Во-первых, застеклять балкон профилем Слайдорс можно при температуре аж до минус 15 градусов! Зимой перед установкой профиль выдерживают в тепле до плюс 20°С – чтобы он не потрескался на морозе, пока его будут монтировать.
Во-вторых, на одну секцию устанавливается от 2-х до 4-х роликов. Причем нагрузка на каждый не должна превышать 40 кг. Так что поинтересуйтесь, сколько весит одна секция, и на скольких роликах ей предстоит кататься.
-

- Профиль Slidors, оклеенный цветной пленкой под дерево
-


- Slidors не очень тяжелый, и подойдет для любых балконов
-


- Окна Слайдорс освежают балкон
В-третьих, после окончания монтажа проверьте, чтобы все нужные детали были на своем месте. А именно: крышки на створках, где они стыкуются; филингпис на раме внизу и вверху в местах стыка створок и по углам; щеточный (на раме) и резиновый (у стекла) уплотнители. А также серповидный замок и крепление для него.
В-четвертых, в нижнем горизонтальном профиле рамы должны быть сливные отверстия овальной формы. На промежутке одной секции – не меньше двух таких отверстий. Проверьте и это.
В-пятых, не переживайте, если створки открываются с небольшим усилием. Гораздо важнее, чтобы их не заедало, и они двигались плавно. Так же, с усилием (но с большим) будут сначала закрываться и серповидные замки. Со временем вся система разработается.
Если вы решили заняться монтажом самостоятельно, смотрите видео: “Установка профиля Слайдорс”
к содержанию ↑
Отзывы наших читателей
Алена Игоревна Яблочкова, Солнцево
Мы остеклили балкон раздвижными окнами slidors около года назад. Нам с мужем они очень понравилась! Два стекла + муж утеплил балкон – и зиму пережили на ура! Температура ни разу не опускалась ниже +10° (при том, что окна открывали).
Антон Константинович Логачев, Левобережный
Поставил себе Slidors года два назад. Не скажу, что на балконе тепло зимой, но теплый балкон мне и не нужен. Главное, чтобы не заливало водой, грязи и шума было поменьше.
Не выбрал алюминий, потому что мне кажется, что пластик лучше защищает от пыли, влаги и шума.
Вячеслав Иванович Пономарев, Зябликово
У меня раньше алюминиевый профиль стоял, зимой примерз – вытащили. Поставили слайдорс со стеклопакетом. Зиму он еще не простоял, по теплозащите не скажу, но радует, что стало тихо. Под окном аптека круглосуточная, ночью к ней постоянно на машинах подруливают, музыка на полную. А со слайдерсом ночами сплю спокойно.
