

Производство пластиковых профилей под брендом Laoumann появилось в подмосковном Домодедове в 2001г. История возникновения компании довольно обыкновенна для отечественных предприятий оконной отрасли: оборудование заказали известной австрийской фирме Technoplast; рецептуру пластической массы для производства профилей разработала не менее известная австрийская фирма Chemson; сам профиль деликатно именуется rehau–подобным.
к содержанию ↑
История бренда Laoumann в России
Остается добавить, что инициатива по созданию данного предприятия в Домодедово принадлежит азербайджанской компании NorthWest International LLC, базирующейся в Баку и проделавшей перечисленные операции по закупке австрийского оборудования и сырья раньше своих домодедовских коллег.
к содержанию ↑
Продукция ПВХ Laoumann


Профиль Laoumann
Под торговой маркой Laoumann в РФ выпускаются три вида профилей: Laoumann Light 60, Laoumann Universal 60, Laoumann Universal 70. Известны также профильные системы Laoumann Classic и Laoumann Ultra, но, по всей видимости, они производятся бакинским предприятием, так как про их выпуск в России доступные источники не сообщают.


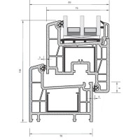
Профиль Laoumann Universal 70 в разрезе
Основные характеристики профиля Лауман Универсал 60:
- количество камер – 3;
- монтажная ширина 60 мм;
- количество контуров уплотнения – 2;
- толщина формообразующей стенки – 2,8 мм;
- толщина стеклопакета – от 4 до 32 мм;
- срок эксплуатации – до 40 лет.
Laoumann Light отличается уменьшенной до 2,5-2,7 мм толщиной стенок. Рекомендуется для остекления балконов, веранд, дач.
Универсал 70 – пятикамерная система монтажной шириной 70 мм. Допускает толщину стеклопакета до 40 мм. В остальном схожа с Laoumann Universal 60. Обладает коэффициентом сопротивления теплопередаче порядка 0,77 м² °C/Вт.


Подоконник Laoumann
Трехкамерная профильная система Classic имеет ширину створки 58 мм и два контура уплотнения.
Laoumann Ultra – ширину 67 мм, четыре камеры и три контура уплотнения. Рекомендована для высотного строительства.
Кроме окон Лауман выпускает пластиковые подоконники 12-и типоразмеров шириной от 100 до 700 мм, длиной 6 метров и толщиной 20 мм (капинос – 40 мм). Это типичная для отрасли продукция со сроком службы до 70 лет.


Фурнитура T&T, внешний вид
Окна Лауман оснащаются фурнитурой T&T турецкой фирмы Erpen. Эта фурнитура позиционируется как товар европейского качества и аттестована институтом Rosenheim в Германии, сертифицирована РОСТЕСТом.
Допускает поворотно-откидное открывание и все прочие прелести, характерные для подобного рода устройств. Включая микро проветривание (опционально), роликовый приподниматель, блокиратор-микролифт и т.д.
Предприятие также выпускает полный набор комплектующих для пластиковых окон, включая штапики, уплотнители и пр.


Отзывы потребителей о профиле Rehau, который считается предтечей «Лаумана», читайте на нашем сайте в анализе жалоб и похвал покупателей
Отзывы потребителей о различных вариантах холодного остекления алюминиевыми профилями читайте по адресу:https://oknanagoda.com/okna/plastik/profili
к содержанию ↑
Алюминиевые профили МСК Laoumann


Алюминиевый профиль МСК Laoumann
Точно по тому же адресу на ул. Индустриальной в г. Домодедово находится еще одно производство – алюминиевых профилей. Осуществляет его ООО МСК «Лауман», и в числе прочей продукции наличествует и изготовление «холодных» оконно-дверных систем из алюминия LA-48, «теплых» LA-66; систем фасадного остекления LA-50. Изготовление профиля может быть осуществлено на заказ, для самых разнообразных проектов, начиная от ограждения балконов и кончая панорамным остеклениям целых корпусов.
Понятно, что основным заказчиком МСК Laoumann в данном случае выступают крупные строительные и промышленные компании, юридические лица.
к содержанию ↑
Официальный сайт дистрибуции пластиковых окон Laoumann
Это просто завораживающий интернет-ресурс. При наборе в строке браузера буквосочетания laoumann.ru, на экране монитора сначала появляется некая томная тётя, возлежащая на перинах и обращающая к зрителю мечтательное лицо. Потом на фоне тёти начинает медленно-медленно, как в подростковом сне, прорисовываться пластиковое окно, и только потом уже появляется логотип: «Laoumann Оконные системы». К чему такие изыски для сайта, созданного для продвижения сугубо промышленной продукции строительно-ремонтного назначения?


Производственная линия Laoumann
Не лучше ли было бы потратить усилия, изведенные на создание этого завораживающего сюжета, на более методичную проработку контента? А то, чесслово! – при знакомстве с рубриками не оставляет ощущение некой урывочности. Непонятно, ни откуда взялось производство пластиковых профилей Laoumann, ни почему ему было присвоено такое звучное наименование. Да и информацию о большинстве профилей «Лауман» пришлось черпать с обычных продающих сайтов тех или иных интернет-магазинов…
Надо сказать, что подобная завораживающая интерактивность свойственна и сайту материнской азербайджанской компании. Только там при наборе в браузере http://www.laoumann.com на мониторе вместо томной тёти возникает просто пустое окно (что делать, Азербайджан – мусульманская страна!); со створки окна взлетает бабочка (типа мотылёк) и, плавно облетая экран, открывает логотип компании и рубрикатор.
к содержанию ↑
Цены на пластиковые окна Laoumann
Как уже догадался читатель, найти конкретную информацию о ценах на пластиковые профили «Лауман» на сайте Laoumann.ru невозможно или же очень сложно. Поэтому проще обратиться к сайтам ритейлеров или интернет-магазинов.


Подоконник и окно Laoumann
Так, по данным онлайн-калькулятора компании «ДизайнПласт» стоимость пластикового окна Laoumann габаритом метр на метр с однокамерным стеклопакетом составляет без монтажа – 4398 руб., с монтажом – 5019 руб.
Окна 1,4 м х 1,4 м – соответственно 12669 руб. и 13886 руб.
Для Москвы это весьма недорого.
Остаётся добавить, что компания имеет свои представительства (кроме центрального офиса в Домодедово) в Нижнем Новгороде и Минске и ведет продажи через ООО «Стройгарант» еще в 17 регионах РФ.