Деревянные евроокна своими руками

Деревянные евроокна своими руками

Деревянные окна своими руками

Сейчас одними из популярнейших окон в частных жилищах считаются деревянные. Прежде всего, на это влияет легко доступность производственного материала. Окно будет удобнее соорудить самому, если его форма нестандартна, при этом количество фурнитуры, створок и форма будут выбираться специалистом. Ниже расположена детальное описание о том, как изготовить деревянные окна своими руками.

Разновидности деревянных окон

Читайте также:  Как наклеить зеркальную пленку на окно

Окно своими руками из дерева: Пошагово в картинках в домашних условиях +Фото и Видео изготовления

В строительном деле веяния прогресса начинают использовать быстрее и проще, чем в остальных отраслях, так как пластиковые окна уже давно не диковинка в нашей стране. Но вот незадача: сменить такие приевшиеся металлопластиковые конструкции на новенькие и из дерева – удовольствие не из дешевых, но что делать, если сроки и финансы поют романсы, а руки растут как раз с нужного места?

На самом деле, сделать окно из дерева своими руками не так уж сложно, тем более, если вы владеете инструментом на уровне «Домашнего мастера».

Немного опыта + базовые навыки +щепотка большого желания + немного сноровки, а также нужные материалы и сырье = вуаля, вы готовы к работе и уже можете быть уверены в победе!

Азы – окно из дерева своими руками – это несложно

Вполне нормально, что и при строительстве дома, и при капитальном ремонте глупо думать, что без опыта и практики вы сможете первоклассно сделать раму из дерева, а лучше две, да еще и откосы в придачу. Но если вам нужны окна на веранду, сарай или другое хозяйственное построение, то большого ума не нужно. А вот есть то, что следует запомнить как Священное Писание – соблюдать герметичность, верно рассчитывать геометрию блока рамы, и конечно же, хорошая подготовка, без которой дела не начнешь.

Важно: при создании оконной рамы собственноручно самым сложным будет сделать профиль для рамы из простого бруса. Здесь вам нужно будет специальное оборудование, без которого будет крайне сложно сделать все как надо даже специалисту. Поэтому советуем, чтобы у вас под рукой было все необходимое, иначе вы можете потратить много времени впустую, а также испортить материал.

Еще важно понимать, что древесина – это невероятный материал и находка человечества, так как она податлива, отлично подходит для обработки, долговечна и создает в помещении интересный микроклимат.

Изготовление рам из дерева следует продумывать заранее, правильно выбрать форму, закупить необходимое сырье, материалы и инструменты (необязательно покупать, для разовых работ можно одолжить у соседа, или взять в аренду в специальном агентстве), и лишь после всех сборов начинать работу. Конечно, у вас вряд ли получится обработать древесину так же качественно, как на специализированном заводе, но вы все равно получите рамы хорошего качества, если будете соблюдать всю технологию процесса.

Окно из дерева своими руками: фото, чертежи, видео

Изготавливаем окно из дерева: подбор материалов

Кажется, что проще всего пойти в магазин с предварительно снятыми мерками и заказать блок у мастера, который сделал уже не одно окно, и точно знает как и что. Но это очень просто, да и зачем, если вы рукастый и не боящийся экспериментов мастер? Для начала при продумывании как сделать оконную раму, следует обратить внимание на то, из какого материала оно будет, ведь этого зависит много – прочность, функциональность и надежность всей конструкции в целом. Помимо этого, сорта деревьев разные, а значит и долговечность у них тоже не одинакова, поэтому следует задуматься – ваши окна будут лишь промежуточным вариантом или хотите сделать их долговечными?

Для начала следует выяснить, что оконная рама из дерева своими руками будет выполнена со съемным стеклом, но при желании всегда можно сделать и свой, герметичный стеклопакет. Вам придется дольше трудиться и даже немного помучаться, но впоследствии вы получите окна своей мечты. Именно для того, чтобы учесть все нюансы важно правильно выбрать древесину, чтобы в дальнейшем не кусать от обиды локти и не проклинать всех и вся.

  • Самым дорогим, и как считается, элитным материалом для деревянных рам выделяют дуб, который прочный, и долговечный. Но стоит подготовить себя к тому, что один только дуб обойдется вам как вся металлопластиковая конструкция в сборке, и неудивительно – вы прочли о преимуществах этой древесины, а значит, и цена у нее соответствующая. Есть одно но: брать древесину следует лишь тогда, когда вы точно уверены в результате, а также у вас есть опыт работы с древесиной.
  • Чтобы не перепутать, как сделать окно из дерева своими руками и не попортить материал, возьмите березу, которая отлично поддается обработке и при этом служит не один десяток лет. Она куда дешевле дуба, прекрасного светлого оттенка и имеет отличную текстуру, правда найти этот материал бывает проблематично.
  • Пожалуй, самым доступным материалом и в плане цены, и в плане распространенности является сосна. Если вы собрались делать оконную раму впервые, отдайте предпочтение именно этому виды древесины, так как оно имеет ряд преимуществ – дерево легкое, его удобное обрабатывать и имеет хорошие показатели по эксплуатации.

Следует понимать, что основное количество оконных рам изготавливают как раз таки из сосны, так что не следует отметать этот вариант. Помимо этого в продаже вы можете найти клееный брус, который уже заранее обработан нужными противоусадочными составами. Такие бруски предотвратят образование и разрастание грибка, плесени и прочего даже при повышенной влажности, что значительно увеличивает эксплуатационный срок оконных блоков и систем.

Изготовление окна из дерева своими руками – выбираем рабочий инструмент

Перед тем, как начать вникать в процесс создания окна из дерева, следует приобрести или попросить у знакомых определенное оборудование, но оно всегда есть у тех, кто уже работал с древесиной. В этом деле важно использовать правильный инструмент и делать все четко по инструкции, чтобы на выходе получить заветное изделие без дефектов. Итак, что же нам понадобится для того, чтобы из клееного или обычного бруса сделать профиль, а после и окно? Нужно создать правильные чертежи, ведь конкретно от этого и будет зависеть, подойдет ли сделанная рама к вашему оконному проему, или нет, а это не так уж просто.

  1. Электрическая и ручная стамеска.
  2. Электрорубанок и циркулярная пила. Можно использовать и ручной инструмент, но по трудозатратам это будет дольше.
  3. Фрезерный станок по дереву (желательно ручной) – понадобится при проработке пазов и конструкторских крепежных элементов.
  4. Отвертки, малярный нож, цикля и остальная мелочь, которая вам может пригодиться.
  5. Штапики – лучше купить в специализированном магазине, и выбирать их из той же породы дерева, что и будущая рама.
  6. Баллончик герметика (силикон) и строительный пистолет, столярный клей.
  7. Рулетка/метр, желательно с лазерным уровнем, а также маркер и карандаш.

Когда весь нужный инструмент будет в наличии, не забудьте о том, что вам нужны чертежи для окна из дерева, иначе вы просто не сможете начать работу. Вначале следует определиться с размерами, поэтому вымеряем оконный проем с учетом наличия/отсутствия коробки. Если коробки нет, не переживайте – на ее изготовление уходит не так много времени, а вот чертеж даже типичного окошка для домика или веранды мы предоставили вам для облегчения работы.

Процесс производства

Пора начинать!

Теперь, когда весь инструмент подготовлен, материалы куплены и вы готовы морально – приступаем к самой работе, то есть создание оконного блока. Учтите, что зазоры между створками и рамой не должны быть более 2 мм, иначе вся конструкция окажется непригодной – из окон будет дуть и вам сразу придется решать проблему уплотнения. Но к чему это все, когда можно уделить процессу больше внимание и обойти такую проблему? Советуем вам посмотреть видео, которое будет размещено в конце статьи, чтобы вы поняли, как правильно сделать окно из дерева своими руками, чтобы воочию увидеть и понять, ведь не зря говорят, что «лучше один раз увидеть, чем сто раз услышать».

Нет короба? Не беда!

Если у вас не вмонтирован короб, куда вы должны установить окно, вам потребуется сделать его собственноручно. Он требуется для того, чтобы нагрузка от стен (точнее, их веса) не легла на оконные рамы, так как это достаточно опасно. Сложного в этом нет ничего, вы просто делаете короб по замерам.

  1. Берем брус/доску с сечением 15*5 см – этого будет достаточно для создания короба.
  2. В нашей заготовке делаем паз, который будет уходить в глубину примерно на 1,5 см и выполнен в форме буквы «Г».
  3. Вначале соединить части конструкции можно и обычным столярным клеем.
  4. Далее высверливаем отверстия примерно на 3 см в глубину, в них вставляем штифы для лучшего скрепления СТРОГО под прямым углом.

Отлично! Заметьте, что смонтировать короб нужно таким образом, чтобы он был неподвижным, то есть просверлить отверстия куда будут вставляться дюбели или анкера и прикрутить коробку НАМЕРТВО. Щели задуваем монтажной пенкой, что будет полезно для гидро и теплоизоляции.

В работе нам понадобится брус с сечением 6*4 см, возможно больше. Это зависит от размера оконного блока. Форма может быть разной, так как это зависит от количества стекол, которые вы хотите вставить и от толщины и размера заводских штапиков.

Важно: чем больше у вас по площади будет оконный блок, тем больше по сечению выбирайте брус. Бывает так, что рама перекашивает от своего веса и массы, поэтому предусмотрите это заранее, чтобы не исправлять ошибки в дальнейшем.

Несколько правил

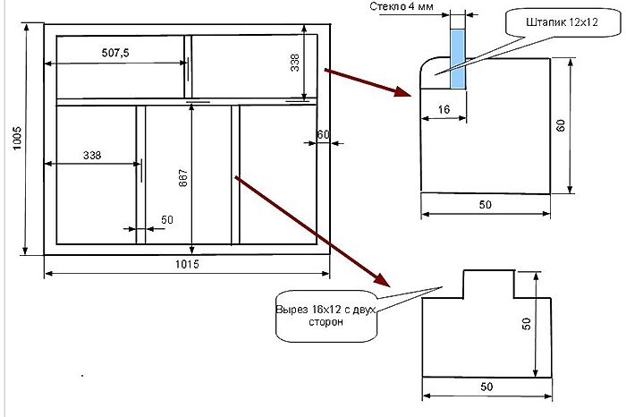
  • Если у вас одностекольный профиль, следует сделать 2 прямоугольных паза, которые потребуются для монтажа и остекления.
  • Если в профиле предусмотрено два стекла, сделайте еще один паз для второго.
  • Если штапик 1-сантиметровый, выбирайте прямоугольные пазы и стекло толщиной 4 мм.
  • Из профиля, в котором будут заранее проделаны пазы, будет собрана рама, при этом следует ее разметить, а после срезать угол в 45 градусов.
  • Сделайте крепежное соединение «шип-паз» и посадите его на клей для большей надежности и неподвижности.

Также вы можете дополнительно закрепить конструкцию саморезами, но вам придется проследить, чтобы шляпки хорошо вошли в древесину, в противном случае они будут мешать закрыванию/открыванию створок, а этого допускать нельзя.

Вставляем стекло

Когда вы закончили делать окно из дерева своими руками, остается лишь вставить стекла, и после вы можете начать заниматься монтажом блока в коробе. Если вы будет аккуратно и без спешки примериваться, то после разрезки стекла у вас будет гарантированное отсутствие холода за счет плотного прилегания стекла к дереву.

  • Обязательно соблюдайте ТБ, так как при разрезке стекла вы можете травмировать себя. Во избежание этого используйте специальные рукавички. Не будет лишним надеть очки, которые предотвратят попадание в глаза стеклянной пыли.
  • Допустимая погрешность при вырезании стекла – 1 мм, а после вырезки следует обработать края наждачкой с мелкой зернистостью.
  • Заранее вымеряв, стекло вставляем на раму, которую следует промазать герметиком. После попадания стекла в паз уберите остатки герметика чистой сухой тканью, иначе после засыхания избавиться от него будет очень сложно.
  • Если окно состоит из парных частей, то следует прикрутить импост из дерева к средней раме. Он, как и рама, должен быть сделан со всеми нужными пазами.
  • Створки, которые будут открываться, делаем из бруса немного тоньше, и прикрепляем к основной раме на навесные петли. На этой створке крепим ручку, на противолежащей крепим защелку -язычок в нужный паз.
Читайте также:  Окна Rehau geneo

Созданный блок остается только поставить в короб и как следует закрепить, как мы описывали выше, если у вас есть сноровка (а за время изготовления оконной рамы она должна была появиться), вам это не составит труда. Не забудьте загерметизировать все щели, чтобы уберечь себя от ветра и осадков, а также от образования сквозняков.

Деревянное окно своими руками – изготовление рамы

Деревянное окно современного дома – изделие довольно сложное. Но вдумаемся, сложное, значит сложенное из нескольких простых. Не важно сколько окажется таких простых шагов, десять или сто. Если двигаться последовательно, то все получится.

Давайте представим, как будет выглядеть будущее окно. Допустим, требуется окно, которое можно немного приоткрыть для проветривания, но можно и растворить настежь, чтобы впустить в помещение больше свежего воздуха. Современная фурнитура позволяет совместить обе функции в одной створке. Однако, именно в этой части, сделаем окно «по старинке». Будет маленькая форточка вверху, и большая створка внизу. Кроме этого окно будет вертикально разделено на две части. Левая часть глухая, правая, где размещается створка и форточка, – открывающаяся. Выглядеть в итоге окно должно примерно так:

Теперь снимаем размеры будущего окна:

Размеры оконного проема 112 на 136 см. Нужно будет оставить с каждой стороны зазоры по 1,5 см для запенивания. Значит, 1,5 справа плюс 1,5 слева дает в сумме 3 сантиметра. Аналогично считаем размер по вертикали. Итого размеры оконной рамы будут 109 на 133 см.

Изготовление оконной рамы. Слой первый.

Первым делом следует озаботиться пиломатериалом. Используем обрезки хвойной доски «пятидесятки» достаточной длины. Они вылежались два сезона и хорошо просохли.

Использовать сырую доску нельзя. Если вам досталась сырая доска, то можно сделать следующее. После того как напилите ее на заготовки, разложите их на горячие батареи. За два-три месяца они просохнут. Если Вы не хотите ждать этого срока, поищите тех, кто занимается столярными работами, делает деревянные кухни, мебель и тому подобное. Часто у них есть сушильные камеры, в которых сушка вообще занимает не больше часа. Это будет недорого.

Напиливаем доски толщиной 50 мм на отрезки по длине. Наши длины 109 на 133 см. При монтаже рамы одна из этих «длин» уменьшится почти на 10 см. Но об этом позже. Пока лучше напилить обрезки с запасом в несколько сантиметров. Сделаем длину 115 на 140 см. Чуть позже станет понятно зачем этот запас нужен.

Дальше нужно распилить отрезки по ширине, которая составит 65 мм. Толщина заготовок останется 50 мм, то есть по толщине доски. У моей дисковой пилы есть специальная планка, которая позволяет зафиксировать ширину распила:

Теперь напиливаем заготовки одинаковой ширины, а потом дополнительно отрезаем еще одну заготовку длиной 140 см, но уже пошире – 7,5 см.

Если попробовать замерить действительные толщины досок «пятидесяток», обнаружится, что ровно 50 миллиметров среди них нет ни одной. Их толщина будет «гулять» от 45 и где-то до 52 мм:

Это не страшно. Досок одинаковой толщины в природе не бывает, и смущать это не должно.

И еще кое-что. Мы, конечно, стараемся выбирать заготовки без сучков. Но, если отбраковывать все доски с сучками, много древесины уйдет в брак. Рама впоследствии будет склеиваться, и «на виду» у заготовок останется не больше двух сторон. Поэтому в некоторых случаях можно использовать заготовки и с сучками. Вот, к примеру, доска, которая, казалось бы, ни на что не сгодится. Но после распиловки на заготовки, видно, что в брак пойдет только средний брусок. Два крайних можно пустить в дело.

Теперь проходим заготовки рубанком на один раз. Рубанок «выставляем» почти на самый минимум:

Этого будет достаточно, чтобы снять с доски «бахрому», остающуюся после распиловки

Теперь можно примерно выложить из заготовок будущую оконную раму:

Подрезаем заготовки до расчетных длин. Пришло время сказать, зачем исходно эти длины отпиливались с запасом. Дело в том, что, когда мы проходим заготовки рубанком, на конце рубанок как бы «заныривает», делая «волну».

Благодаря имеющемуся запасу длины, эту «волну» отпиливаем. Размечаем место отпила сразу на двух сторонах заготовки, чтобы распил не «ушел в бок»

Сначала отрезаем бруски длиной 133 см. Первый брусок отмеряется рулеткой, второй, используя уже отпиленный.

Ширина рамы, как мы помним, составляет 109 см, но горизонтальные бруски по длине будут короче почти на 10 см. Их мы отмеряем вот таким способом, используя те, что уже отпилили с длиной 133 см. 109 см отмеряем с их учетом:

Теперь шлифуем заготовки. На грубую шлифовку, чтобы заровнять небольшие «волны», оставленные рубанком, можно использовать ленточную шлифмашину. Есть модели, которые крепится к верстаку. Кстати, очень удобно:

Для тонкой доводки лучше взять маленькую вибрационную шлифмашинку. Ею же снимаем фаску, то есть скругляем острые грани брусков. Ну и в конце обязательно «нулевочкой» вручную.

Кстати, со всех сторон тщательно шлифовать заготовки необязательно. Можно ограничиться теми гранями, которые окажутся впоследствии «лицевыми». Шлифовать грани, которые потом «уйдут в склейку» не обязательно.

Есть ли смысл иметь шлифовальные машины двух видов Ленточная машина мощнее и годится на то, чтобы «крыть по площадям». Ей, конечно, далеко до рубанка, но ее можно рассматривать как определенный промежуточный этап между наждачкой и рубанком.

В отличие же от ленточной, небольшая по мощности машина вибрационного типа и в руке держится полегче, и позволяет обрабатывать места, недоступные для ленточной машины. Ее хорошо использовать для тонкой доводки еще и потому, что наждачка у нее крепится на липучку. Мелкая наждачка «сидит» на этой липучке гораздо лучше. Грубая наждачка слишком легко отваливается. И кстати, минус этой липучки в том, что раз отвалившаяся наждачка на второй раз уже не прилипнет.

Теперь начинаем собирать раму. Более узкая 50 мм сторона пойдет «на лицо». На торцы коротких заготовок наносим клей, и «садим» заготовки на саморез, не забывая, что мы должны как можно тщательнее соблюсти прямой угол примыкания. Для этого используем металлический угольник:

После сборки рамы по контуру, отмеряем, распиливаем, шлифуем и так же на клей и саморез «садим» срединную вертикальную заготовку:

Это еще не вся рама. Мы собрали только ее первый «слой». Пришло время браться за второй «слой».

По окончании сборки первого слоя рамы, может оказаться, что примыкающие друг к другу элементы стыкуются не в «ноль». И дело не в том даже, что при распиловке и обработке очень трудно выдержать идеально точные размеры. Вспомните, деревяшка является частью когда-то живого дерева. Она имеет определенное внутреннее напряжение, может сохранять форму дуги или быть скрученной в «спираль». На глаз этого не увидишь, и при начальной обработке не замеришь.

Однако именно гибкость древесины, поможет нам потом при состыковке «притянуть» друг к другу все элементы. Поэтому, просто устраняем неровности рубанком:

Изготовление рамы. Второй слой.

Берем оставшиеся заготовки 50 мм толщиной и 65 мм – шириной. Распускаем их по толщине на брусочки 30 и 20 мм, ширина 65 мм остается прежней.

Бруски потоньше, толщиной 20 мм, пока откладываем в сторону. Нам сейчас понадобятся бруски 30 мм толщиной и 65 мм шириной. Так же проходим их рубанком и шлифуем.

Сначала доводим последний штрих, относящийся к первому слою рамы. Устанавливаем брусок, который будет отгораживать форточку от нижней створки. Делаем ее из планки 30 мм шириной. Крепим ее так же на клей и саморезы, не забывая выдерживать прямые углы всей конструкции.

Ну, а теперь начинаем изготавливать второй слой рамы. Его установку начинаем от той самой форточной перегородки, которую мы смонтировали последней. Так будет легче соблюсти порядок, при котором элементы второго слоя будут ложиться с нахлестом на места состыковок элементов первого слоя. Это придаст всей конструкции прочность. Переворачиваем раму «бессучковым лицом» вниз и крепим внахлест первую деталь второго слоя. Тщательно вымеряем стыкуемые элементы, крепить нужно строго по центру, и наносим клей:

Прижимаем на несколько секунд, чтобы клей схватился и стягиваем склеиваемые поверхности струпциной или тисочками. Затем, чтобы удержать плотность склейки садим элементы на саморезы.

Обратите внимание, что длина приклеенной планочки «взята с запасом». Она на несколько сантиметров выступает за срединный вертикальный брусок. Это видно на правой фотографии сверху. Дальше крепим остальные детали второго слоя рамы. Завинчивать саморезы до конца не обязательно. После того как клей высохнет, мы их выкрутим.

Если вы помните, одну вертикальную заготовку мы делали чуть шире остальных, 75 мм вместо обычных 65 мм. Мы ее тоже порезали по толщине, нам понадобится часть так же шириной в 30 мм. Вот эта широкая планка «пойдет» на срединный вертикальный брусок. Нам ведь нужно, чтобы она выступала за брусок с двух сторон.

После того как клей высох, пришло время заменить саморезы на деревянные шпунты. Возьмем шпунты 8мм в диаметре и 40мм длинной. Сверло, соответственно, тоже восьмимиллиметровое. Под шпунты высверливаем дрелью отверстия.

Чтобы не сверлить лишнего, на сверло можно накрутить изоленту. Тогда при сверлении будет видна достаточная глубина отверстия

Высверленные отверстия наполняем клеем и забиваем шпунты молотком.

Теперь, когда все детали второго слоя установлены можно подрезать ту «форточную» планочку, с которой мы начинали монтаж второго слоя:

Ошлифовываем подсохшие шпунты:

Вот такая рама у нас получилась:

Теперь можно приступить к покраске. Если Вы покрываете раму без помощников, то сначала лучше выкрасить боковины, а потом лицевую часть. Так лучше удается избежать подтеков.

Когда будете выбирать в магазине расцветку морилки и лака, проследите чтобы продавец показал выкраску именно того производителя, продукцию которого вы собираетесь приобретать. Какой-нибудь «дуб» или скажем «палисандр», у разных производителей по цвету будет очень сильно отличаться.

Чтобы сказать, что рама полностью готова, и можно переходить к изготовлению створок, нам остается проложить резиновый уплотнитель. Берем так называемый «Д»-образный. Называется он так потому, что в сечении напоминает латинскую «D». Этот уплотнитель уже имеет липкий слой, дополнительно наносить клей не нужно.

Вот теперь рама готова. Переходим к створкам.

Как сделать правильно своими руками деревянные евроокна

Окна являются важнейшей составляющей частью любого помещения. С каждым годом на рынке появляется все больше новинок, причем одна лучше другой. Последнее изобретение — евроокна. На сегодняшний день наибольшей популярностью для изготовления оконных рам пользуется пластик. Ведь это материал достаточно легкий и простой в монтаже. А деревянные евроокна только постепенно входят в пользование в силу своей дороговизны.

Читайте также:  Окна пластиковые ГОСТ 30674 99

Деревянные евроокна обладают массой достоинств: экологичность, натуральность, безопасность, привлекательный внешний вид. Однако приобрести и поставить их потребуется немалая сумма.

Но в современном мире люди все же предпочитают если и устанавливать деревянные окна, то по евростандартам. Ведь такие конструкции намного удобнее в использовании, да и срок их эксплуатации намного выше. А процесс деформации идет очень медленно и практически незаметно. Но сделать деревянные евроокна своими руками намного дешевле, чем приобрести уже готовую раму.

Преимущества деревянного окна перед пластиковым

Прежде чем рассмотреть принцип изготовления такого типа рам, целесообразно разобраться, в чем же преимущество деревянных евроокон перед пластиковыми. Ведь, помимо экологичности и природности материала, есть еще несколько важнейших характеристик, которые ставят именно дерево на первый план.

Преимущества деревянных окон.

  1. Удобство ремонта. Считается, что ремонтировать пластиковые стеклопакеты или нереально, или довольно сложно. Конечно, все зависит от вида поломки. Но все же деревянные окна ремонтировать легче. И, в отличие от пластика, во время ремонта минимальный риск образования трещин.
  2. Декоративность. Во-первых, дерево смотрится намного красивее пластика. И даже если пластиковое окно будет сделано под дерево, оно никогда не сравнится с настоящим деревянным окном. Во-вторых, на деревянном окне всегда меньше заметно грязь.
  3. Основное преимущество — отсутствие выделений вредных веществ при изменениях температурных режимов. При этом также не стоит беспокоиться об изменении размеров рамы. Конечно, дерево имеет свойство сужаться и расширяться, но при условии правильной установки это происходит незаметно.

Итак, основные преимущества пластика перед деревом рассмотрены. Можно сюда добавить, что в евроокнах, как и в пластиковых, есть антимоскитные сетки, несколько режимов открывания, а также возможность подобрать крепление.

Теперь самое время перейти к рассмотрению процесса изготовления рамы.

Опишем это кратко, чтобы вы могли понять для себя, под силу ли вам это правильно сделать.

Подготовка бруса для деревянной рамы

Первым этапом будет изготовление и подготовка к установке бруса — основного материала для оконной рамы. Сначала производятся замеры рамы, которые лучше делать с привлечением специалистов, так как сами вы не сможете предугадать необходимые зазоры, после этого размеры наносятся уже непосредственно на древесину и выпиливаются. Полезно знать такие основные правила по подготовке бруса для евроокна из дерева:

Схема замеров оконного проема.

  1. Для евроокна нужно выбирать деревянный брус влажностью на уровне 12%. При этом лучше всего выбирать такие породы дерева, как дуб, бук, граб или некоторые хвойные. Как правило, эти деревья самые стойкие и качественные для таких конструкций.
  2. Специалисты по отделке окон советуют не использовать для рам цельные куски бруса. Наилучшим вариантом будет соорудить брус из нескольких досок (в 3 или в 4 слоя), которые необходимо склеить. Причем склеивать нужно так, чтобы у каждой доски направления волокон отличались от направления предыдущего слоя.
  3. Важнейшим моментом является наличие защитного покрытия на деревянной оконной раме. Защитные слои наносятся на брус до его установки в проем. Для этого применяются антисептики и пропитки. А вот декоративное покрытие должно наноситься уже после монтажа.

Монтаж фурнитуры, стекла и установка рамы

Фурнитура для окон.

Следующий этап изготовления рамы своими руками — подготовка и монтаж к брусу крепежных элементов. Для начала покупается вся необходимая фурнитура. Это крепежи для откидывания и открывания окна, для фиксации примыкания рамы к проему, а еще специальный уплотнитель, который укладывается внутри каждого бруса для исключения задувания ветра и попадания осадков.

Многие предпочитают сначала пренебречь уплотнителем, чтобы сэкономить деньги и время. Но это совершенно неправильно. Ведь, в отличие от пластиковых окон, где обычно специальная уплотнительная резина вмонтирована уже в раму, в деревянном окне ее отсутствие может привести к недостаточной звукоизоляции. В конструкции вырезается лобзиком паз, куда потом укладывается уплотнитель.

Что касается прочих элементов крепления, то их количество рассчитывается вами самостоятельно и зависит полностью от того, сколько вы хотите защелок иметь на раме. Для такого типа фурнитуры нужно проделывать специальные выемки.

Схема конструкции деревянных евроокон.

Но рассчитывать их необходимо очень тщательно, исходя из уже купленной фурнитуры. Монтируется фурнитура с использованием шуруповерта на специально подобранные шурупы, болты или же саморезы.

Итак, после этого необходимо в рамы вставить стекло. Для него вы должны еще будете заранее проделать пазы, опять же, в зависимости от толщины стекла. Для стеклопакетов из дорогих пород древесины целесообразно использовать не обычное хрупкое стекло (даже если оно довольно толстое), а специально обработанное, которое не так легко разбить.

После вставки стекла останется аккуратно вмонтировать стеклопакет в проем, зафиксировав его специальными крепежами, а потом заделать трещины между стеной и рамой при помощи строительно-монтажной пены. Когда пена застынет, дайте окну постоять, после чего можно покрывать его лаком или краской.

Теперь, после рассмотрения в целом процесса, вы можете решить, в ваших ли силах сделать деревянные евроокна самостоятельно.

Деревянные окна своими руками — характеристика и правила изготовления

При изготовлении деревянных окон своими руками необходимо соблюдать точность в работе. Нестыковка в несколько миллиметров может привести к перекосу всей конструкции при ее установке. Как результат – риск нарушения теплоизоляции.

Однако если пластиковые стеклопакеты выпускаются только на заводе, то изделия из дерева при наличии нужных инструментов и опыта работы реально изготовить самостоятельно. Особенно такая конструкция оказывается востребованной в загородных домах и на дачах.

В замене оконных рам особенно нуждаются хрущевки и давно построенные частные дома. Замена старых ставен на деревянные окна является оптимальным вариантом. Важно сделать правильный выбор профиля изделия. Иногда используется одинарное стекло. Другим методом считается стеклопакет.

Если в первом случае к преимуществу относится невысокая стоимость, то двойное стекло обеспечивает лучшее сохранение тепла из-за низкой теплопроводности. Это особенно важно для тех районов, где зимой устанавливается морозная погода. В промежуток закачивается инертный газ. Со временем он выходит, но от этого стеклопакет не утрачивает своих характеристик.

Существует еще один тип окна – финский 3-камерный стеклопакет. С одной стороны устанавливается система из 2 стекол, а с другой – одинарный вариант.

Перед началом работ по изготовлению деревянной конструкции своими руками нужно сделать правильный выбор типа древесины:

  1. 1. Дуб. Хороший материал для таких видов работы, но очень дорогостоящий.
  2. 2. Береза. Является оптимальным вариантом. Древесина хорошо поддается обработке и имеет невысокую цену. К недостатку относится сложность приобретения.
  3. 3. Сосна. При правильной эксплуатации служит длительное время. Материал недорогой. Учитывая его доступность, с ним может работать и новичок.

Перед началом проведения работ своими руками создается чертеж будущей оконной конструкции. Затем заготавливаются материалы и инструменты:

  • деревянный брус;
  • доски;
  • стекло;
  • штапики;
  • саморезы;
  • клей ПВА;
  • молоток;
  • дрель;
  • стеклорез;
  • фрезерный станок с набором фрез;
  • пила.

Пошагово инструкция по изготовлению деревянных окон состоит из этапов:

  1. 1. ­ Формирование короба.
  2. 2. ­ Изготовление рамы.
  3. 3. ­ Остекление.

Следует помнить, что деревянный материал подбирается с точной геометрией и без трещин.

Изготовление короба ведется тогда, когда он отсутствует в строении дома. Необходимость его заключается в том, чтобы взять на себя основную нагрузку и разгрузить раму.

Этапы его изготовления:

  1. 1. В доске с сечением 15х5 см делается Г-образный паз. Его глубина составляет 1,5 см.
  2. 2. Четыре доски соединяются в виде короба.
  3. 3. В углах сверлятся отверстия на глубину 3 см.
  4. 4. В них забиваются деревянные штифты. Это придает конструкции жесткость.

При изготовлении рамы помощь оказывает чертеж.

На боковых и промежуточных планках отбирается четверть. Это выборка древесины, куда будут вставляться стекла.

В торце брусьев делаются пазы по типу шип-паз. Для этого используется концевая фреза. Если она отсутствует, то применяется обычная стамеска.

Места заполняются клеем ПВА, скрепляются и прижимаются.

В одну часть рамы ставится створка. Для этого в брусьях делаются выборки. Створка изготавливается по тому же принципу, что и рама. Она должна плотно входить в предназначенное ей место. После этого ведется разметка под крепление петель.

В размеченных местах сверлятся отверстия, проводится фиксация петель. Затем идет установка ручек. Для этого в рейке створки фрезеруется паз и вставляется механизм. В ответной части формируется место для захода язычка.

При установке стекла требуется его точная отрезка с допуском не больше 0,5 мм. Для этого используется алмазный саморез. Окончательная полировка делается наждачной бумагой.

Если отклонение в размерах достигнет 1 мм, то образуется мостик холода. Окно не выполнит своей функции.

Работы по остеклению требуют соблюдения техники безопасности:

  1. 1. Чтобы не поранить руки, надеваются перчатки.
  2. 2. Обязательно наличие очков. Идет предохранение глаз от попадания в них стеклянных микрочастиц.
  3. 3. Не рекомендуется вести дыхание ртом и разговаривать. Вместе с воздухом стеклянные крошки оседают на слизистой оболочке горла.

Порядок работы следующий:

  1. 1. Предварительно измеряется стекло, которое необходимо отрезать. Для этого используется метровая линейка, превышающая габариты материала.
  2. 2. Алмазным стеклорезом прочерчивается линия.
  3. 3. К стеклу прикладывается дощечка, чтобы ее срез совпадал с линией, и хорошо прижимается.
  4. 4. Нажатием руки стекло отламывается с характерным треском по линии надлома.
  5. 5. Ведется примерка. Если отрезка выполнена точно, то стекло устанавливается и прижимается штапиками, в которых вбиваются тонкие гвозди.
  6. 6. При установке двойных стекол между ними крепится брус с выбранными пазами.

Полностью собранное окно следует установить в проем. Предварительно оттуда убирается весь мусор. Затем необходимо с шагом 80 мм сделать отверстия под дюбели. После монтажа окна фиксация его ведется на саморезы. Все щели заполняются монтажной пеной. Это позволяет утеплить оконный проем. Установка сопровождается регулярной проверкой геометрии окна.

Важным этапом является монтирование подоконника. При этом следует помнить, что по длине он делается на 100-200 мм больше оконного проема. Выступающая часть составляет величину в районе 70 мм.

Порядок установки его следующий:

  1. 1. Из доски или покупного изделия отрезается нужный размер.
  2. 2. Снаружи оббивается войлоком.
  3. 3. Ведется заведение его под раму.
  4. 4. Относительно земли подоконник выравнивается с помощью клиньев. Допускается уклон в наружную сторону до 2 градусов.
  5. 5. Все пустое пространство заполняется пеной при помощи пистолета.

Чтобы правильно покрасить оконную раму, необходимо учесть следующие моменты:

  1. 1. Поверхность, которая подлежит покраске, грунтуется. Это не только снизит расход покрасочного материала, но и увеличит срок эксплуатации рамы.
  2. 2. Для нанесения краски используется кисточка. Один на другой накладывается несколько слоев.
  3. 3. Для поверхности, которая выходит наружу, применяется определенная краска. Внутренняя часть рамы окрашивается в любой цвет.

Изготовление рамы своими руками относится к работам, где требуется соблюдать высокую точность. Для этого необходимо запастись нужным инструментом. Некоторые виды работ лучше выполнять на станке для гарантированной выдержки размеров. В итоге самодельное изделие хоть и будет уступать заводскому варианту, но обойдется значительно дешевле.

Ссылка на основную публикацию