Деревянное окно своими руками пошаговая инструкция
Деревянные окна своими руками — характеристика и правила изготовления
При изготовлении деревянных окон своими руками необходимо соблюдать точность в работе. Нестыковка в несколько миллиметров может привести к перекосу всей конструкции при ее установке. Как результат – риск нарушения теплоизоляции.
Однако если пластиковые стеклопакеты выпускаются только на заводе, то изделия из дерева при наличии нужных инструментов и опыта работы реально изготовить самостоятельно. Особенно такая конструкция оказывается востребованной в загородных домах и на дачах.
В замене оконных рам особенно нуждаются хрущевки и давно построенные частные дома. Замена старых ставен на деревянные окна является оптимальным вариантом. Важно сделать правильный выбор профиля изделия. Иногда используется одинарное стекло. Другим методом считается стеклопакет.
Если в первом случае к преимуществу относится невысокая стоимость, то двойное стекло обеспечивает лучшее сохранение тепла из-за низкой теплопроводности. Это особенно важно для тех районов, где зимой устанавливается морозная погода. В промежуток закачивается инертный газ. Со временем он выходит, но от этого стеклопакет не утрачивает своих характеристик.
Существует еще один тип окна – финский 3-камерный стеклопакет. С одной стороны устанавливается система из 2 стекол, а с другой – одинарный вариант.
Перед началом работ по изготовлению деревянной конструкции своими руками нужно сделать правильный выбор типа древесины:
- 1. Дуб. Хороший материал для таких видов работы, но очень дорогостоящий.
- 2. Береза. Является оптимальным вариантом. Древесина хорошо поддается обработке и имеет невысокую цену. К недостатку относится сложность приобретения.
- 3. Сосна. При правильной эксплуатации служит длительное время. Материал недорогой. Учитывая его доступность, с ним может работать и новичок.
Перед началом проведения работ своими руками создается чертеж будущей оконной конструкции. Затем заготавливаются материалы и инструменты:
- деревянный брус;
- доски;
- стекло;
- штапики;
- саморезы;
- клей ПВА;
- молоток;
- дрель;
- стеклорез;
- фрезерный станок с набором фрез;
- пила.
Пошагово инструкция по изготовлению деревянных окон состоит из этапов:
- 1. Формирование короба.
- 2. Изготовление рамы.
- 3. Остекление.
Следует помнить, что деревянный материал подбирается с точной геометрией и без трещин.
Изготовление короба ведется тогда, когда он отсутствует в строении дома. Необходимость его заключается в том, чтобы взять на себя основную нагрузку и разгрузить раму.


Этапы его изготовления:
- 1. В доске с сечением 15х5 см делается Г-образный паз. Его глубина составляет 1,5 см.
- 2. Четыре доски соединяются в виде короба.
- 3. В углах сверлятся отверстия на глубину 3 см.
- 4. В них забиваются деревянные штифты. Это придает конструкции жесткость.
При изготовлении рамы помощь оказывает чертеж.


На боковых и промежуточных планках отбирается четверть. Это выборка древесины, куда будут вставляться стекла.


В торце брусьев делаются пазы по типу шип-паз. Для этого используется концевая фреза. Если она отсутствует, то применяется обычная стамеска.


Места заполняются клеем ПВА, скрепляются и прижимаются.


В одну часть рамы ставится створка. Для этого в брусьях делаются выборки. Створка изготавливается по тому же принципу, что и рама. Она должна плотно входить в предназначенное ей место. После этого ведется разметка под крепление петель.


В размеченных местах сверлятся отверстия, проводится фиксация петель. Затем идет установка ручек. Для этого в рейке створки фрезеруется паз и вставляется механизм. В ответной части формируется место для захода язычка.


При установке стекла требуется его точная отрезка с допуском не больше 0,5 мм. Для этого используется алмазный саморез. Окончательная полировка делается наждачной бумагой.


Если отклонение в размерах достигнет 1 мм, то образуется мостик холода. Окно не выполнит своей функции.
Работы по остеклению требуют соблюдения техники безопасности:
- 1. Чтобы не поранить руки, надеваются перчатки.
- 2. Обязательно наличие очков. Идет предохранение глаз от попадания в них стеклянных микрочастиц.
- 3. Не рекомендуется вести дыхание ртом и разговаривать. Вместе с воздухом стеклянные крошки оседают на слизистой оболочке горла.
Порядок работы следующий:
- 1. Предварительно измеряется стекло, которое необходимо отрезать. Для этого используется метровая линейка, превышающая габариты материала.
- 2. Алмазным стеклорезом прочерчивается линия.
- 3. К стеклу прикладывается дощечка, чтобы ее срез совпадал с линией, и хорошо прижимается.
- 4. Нажатием руки стекло отламывается с характерным треском по линии надлома.
- 5. Ведется примерка. Если отрезка выполнена точно, то стекло устанавливается и прижимается штапиками, в которых вбиваются тонкие гвозди.
- 6. При установке двойных стекол между ними крепится брус с выбранными пазами.
Полностью собранное окно следует установить в проем. Предварительно оттуда убирается весь мусор. Затем необходимо с шагом 80 мм сделать отверстия под дюбели. После монтажа окна фиксация его ведется на саморезы. Все щели заполняются монтажной пеной. Это позволяет утеплить оконный проем. Установка сопровождается регулярной проверкой геометрии окна.
Важным этапом является монтирование подоконника. При этом следует помнить, что по длине он делается на 100-200 мм больше оконного проема. Выступающая часть составляет величину в районе 70 мм.
Порядок установки его следующий:
- 1. Из доски или покупного изделия отрезается нужный размер.
- 2. Снаружи оббивается войлоком.
- 3. Ведется заведение его под раму.
- 4. Относительно земли подоконник выравнивается с помощью клиньев. Допускается уклон в наружную сторону до 2 градусов.
- 5. Все пустое пространство заполняется пеной при помощи пистолета.


Чтобы правильно покрасить оконную раму, необходимо учесть следующие моменты:
- 1. Поверхность, которая подлежит покраске, грунтуется. Это не только снизит расход покрасочного материала, но и увеличит срок эксплуатации рамы.
- 2. Для нанесения краски используется кисточка. Один на другой накладывается несколько слоев.
- 3. Для поверхности, которая выходит наружу, применяется определенная краска. Внутренняя часть рамы окрашивается в любой цвет.
Изготовление рамы своими руками относится к работам, где требуется соблюдать высокую точность. Для этого необходимо запастись нужным инструментом. Некоторые виды работ лучше выполнять на станке для гарантированной выдержки размеров. В итоге самодельное изделие хоть и будет уступать заводскому варианту, но обойдется значительно дешевле.
Технология изготовления рамы для окна из дерева


Коровин Сергей Дмитриевич
Магистр архитектуры, закончил Самарский Государственный Архитектурно-Строительный Университет. 11 лет опыта в сфере проектирования и строительства.
Пластиковые окна смогли завоевать сердца миллионов покупателей по всему миру. Однако отнести их к бюджетным решениям можно разве что с натяжкой. Более доступным вариантом станут деревянные рамы для окон. Специальные станки справятся с производством рам быстрее, но если речь идет о желании создать что-то собственными руками, то этот материал обязательно пригодится. Кроме того, окна из дерева со стеклопакетом станут оптимальным вариантом для загородного дома или дачи, где требования к внешнему лоску куда ниже. Итак, как сделать окно своими руками?
Особенности конструкции
Сделать окно, не уступающее по качеству изделиям в продаже, вряд ли получится даже у профессионала. Причина проста: конструкция деревянного окна должна быть выполнена максимально точно, включая раму и переплет – отклонение в несколько миллиметров грозит немалыми проблемами с теплоизоляцией. Несмотря на это, создать более простую конструкцию многим вполне по силам.


Самодельный оконный блок из дерева
Деревянные окна, которые сегодня выпускаются на заводах, практически идентичны пластиковым за единственным исключением – используемый материал. Они отличаются достаточно сложной конструкцией, обусловленной возможностью раскрытия створок в двух плоскостях. Если же изготовлением рамы заняться самостоятельно, то конструкцию лучше упростить, заменив все инженерные изыски обычным прямоугольником из брусков.
Процесс изготовления рамы производится в несколько этапов:
- выбор профиля, заготовка материалов;
- изготовление рамы;
- установка и остекление оконного блока.
Выбираем профиль
Прежде всего, следует выяснить, планируется использовать обычное листовое стекло или стеклопакеты в будущих деревянных рамах. У каждого варианта есть свои достоинства: в первом случае это низкая стоимость и возможность самостоятельной раскройки, во втором – меньшая теплопроводность.


Теплопроводность классического окна больше, чем у стеклопакета
Одной из особенностей стеклопакетов является специальный инертный газ, который производитель закачивает между отдельными листами. Со временем его концентрация может снизиться. Не стоит пугаться заранее – теплопотери через окно, если и возрастут, то минимально, заметно этого практически не будет.
Существует и специальный гибридный вариант – так называемое финское евроокно (или скандинавское). Оно включают в себя листовое стекло и 2-х или 3-х камерный стеклопакет. Подобный подход позволит добиться высокой теплоизоляции.


Финское окно обладает самыми высокими теплоизоляционными свойствами
Наиболее простым и в то же время надежным и популярным в народе решением сегодня является вариант с парой стекол, между которыми расположена воздушная прослойка шириной от 2 см и более. Другим вариантом является изготовление деревянных окон своими руками с одинарным остеклением и двойной рамой.
Выбор материала
Чаще всего для изготовления деревянной рамы используют сосну. Это практичный, простой в обработке и недорогой материал. В качестве альтернативы можно использовать и дуб, но для первых опытов он окажется слишком затратен.


Как правило, для изготовления оконного блока используют сосну
Какой бы материал ни был выбран, брус должен быть тщательно просушен, на его поверхности не должно быть никаких изъянов: сучков, трещин или других повреждений – из некачественного материала изготовление окон невозможно.
Изготовление рамы
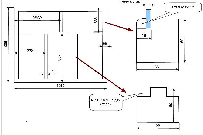
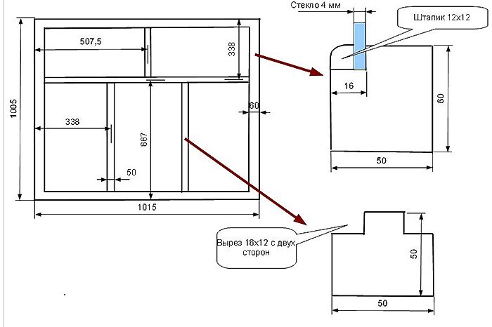
Главным нюансом изготовления деревянных рам является сохранение формы и геометрии при сборке – в этом помогут заранее подготовленные чертежи. Брус для работы выбирается исходя из планируемой толщины стекла. Минимальный размер сечения – 60х40 мм. Для создания пазов используется электрорубанок или фрезер. Специалисты рекомендуют новичкам перед началом работы потренироваться на небольших кусках – сделать вертикальный или горизонтальный пропил.


Типовой чертеж для изготовления оконной рамы с размерами
Перед началом работ следует тщательно произвести все замеры. Если имеется такая возможность, лучше перепоручить эту работу профессионалам – отклонение в миллиметр может привести к нежелательным последствиям, сделать деревянное окно в таком случае не выйдет. Торцы подпиливаются под углом в 45 градусов.
Сборка элементов деревянного стеклопакета своими руками производится на столярный клей. Для придания дополнительной прочности на углах проделываются отверстия, в которые вставляют стержни из дерева, также промазанные клеем. Для дополнительного усиления на соединяющихся элементах выбивается при помощи фрезы паз, в который устанавливают шпонку. В результате конструкция должна стать неподвижной, чтобы самодельный переплет был практически монолитным.


Типы соединения углов
В качестве альтернативного варианта можно воспользоваться соединением шип-паз. Однако работа с ним может оказаться куда более трудоемкой, так как требует очень большой точности. Поэтому чаще всего при изготовлении окон из дерева применяется описанный выше вариант. После этого изготовление окна переходит к завершающему этапу.
Монтаж рамы
Установка рамы из дерева своими руками производится в заранее подготовленное отверстие в стене. Проем следует сначала подготовить: выровнять его, убрать всю грязь и строительный мусор. В стенах подготавливаются отверстия под дюбели с шагом до 80 см. Крепление короба осуществляется саморезами, впоследствии щели заделываются монтажной пеной или другими теплоизолирующими материалами.


Установка короба в оконный проем
В процессе очень важно соблюдать геометрию окон из дерева: углы в 90 градусов, отклонение в ровности не более 1 мм на 1 м, разница диагоналей до 10 мм.
Остекление
После этого следует размещение стеклопакетов в деревянные рамы. Главный нюанс – точный выбор размеров, т.к. устройство деревянного окна не допускает отклонений. Отклонение в миллиметр создаст так называемые мостики холода, которые ведут к крайне негативным последствиям. Также не следует пренебрегать техникой безопасности – необходимо надевать перчатки и очки для защиты рук и глаз.
Для резки по традиции используется алмазный стеклорез, полировка производится наждачной бумагой с мелким зерном. Сама техника проста – отмеряем нужный размер, прикладываем вдоль прямой линейку и проводим вдоль нее стеклорезом. После обрезки следует проверить, подходит ли стекло и, если да, то останется лишь установить его в раму, не забывая про герметик. Крепится в раме стекло при помощи штапика – делая деревянные окна со стеклопакетом, следует позаботиться о нем заранее.
Подоконник
Одним из этапов установки деревянных окон со стеклопакетами является работа с подоконником. Материал для него может быть любым.


Установка подоконника
Установка подоконника производится в следующей последовательности:
- Из покупного подоконника следует вырезать нужную форму.
- Подоконник нужно частично завести под раму, в нижней части фиксация осуществляется при помощи клиньев из дерева.
- Пустое пространство снизу заполняется пеной. Впоследствии выступающие излишки удаляются при помощи ножа.
Покраска
Покрасить деревянные окна своими руками не составляет особой сложности. Однако необходимо помнить о следующих нюансах:
- Если это не было сделано еще до сборки, переплет, готовый к покраске, следует обработать антисептиком. Особое внимание при этом следует уделать торцам, так как именно через них вредитель чаще всего проникает в дерево.
- Перед началом покраски поверхность следует обязательно прогрунтовать. Это делается сразу в двух целях: во-первых, грунтовка поможет снизить расход краски, во-вторых, она сыграет роль антисептика, увеличивая срок службы окна.
- Покраску рекомендуется производить кисточкой, проводится процедура в несколько слоев.
- Для наружной стороны рекомендуется использовать специальную краску для наружных работ, а вот с комнатной стороны можно использовать любую.


Покраска рамы осуществляется кистью в 2-3 слоя
На этом изготовление деревянной рамы для окон можно считать завершенным.
Итоги
Как можно заметить, деревянное окно своими руками изготовить вполне реально. Конечно, по качеству оно будет уступать фабричным моделям, но и разница в цене весьма значительна. Для того чтобы справиться со всем самостоятельно, потребуется не только досконально изучить технологию, но также запастись подходящим материалом и инструментом. Если все будет сделано верно, результат обязательно порадует вас и близких как красотой, так и теплом, которое деревянные стеклопакеты и переплет помогут сохранить в доме.
Как сделать деревянное окно своими руками
Смастерить деревянное окно своими руками сможет каждый желающий, достаточно лишь знать необходимую информацию о существующих технологиях, и следовать инструкции. Работать с этим материалом очень просто, к тому же, понадобится минимальный набор инструментов.
Содержание [Скрыть]
Рассмотрим, как самостоятельно изготовить деревянное окно от «А» до «Я».

Рис. 1. Внешний вид самодельного деревянного окна
Подготовительный этап
Любая строительная работа состоит из подготовительного, основного и заключительного этапа. При изготовлении окна подготовительный этап включает себя подбор столярных инструментов и оптимального сырья. Кроме того, необходимо сделать детализированный чертёж, на котором отмеченные не только общие размеры рамы, но и габариты всех составных частей.
Необходимые инструменты
Для работы понадобятся следующие инструменты:
- молоток;
- дрель;
- шуруповёрт;
- стеклорез;
- стамеска;
- фрезерный станок;
- шлифовальный станок;
- пила.
Список не исчерпывающий. Если есть желание максимально сэкономить, понадобится еще и циркулярка. В этом случае можно купить любое деревянное полотно и самостоятельно распустить его на нужные заготовки.
Необходимые материалы
Деревянные оконные рамы в большинстве своём изготавливаются из сухой или клееной древесины, но в некоторых случаях можно в качестве сырья использовать новые фанерные листы.
Фанера – это самый дешевый и некачественный вариант. Подходит только для окон, расположенных внутри помещения. Даже хорошо обработанная защитными пропитками, фанера быстро набирает влагу и начинает рассыпаться.
Цельный деревянный брус – это хорошее и относительно недорогое решение. Недостаток заключается в том, что такую доску может повести, что приведет к изменению геометрии. Кроме того, нужно обратить внимание, чтобы не было трещин и сучков.
Клееная древесина – отличный выбор для изготовления рамы. Во-первых, она имеет лёгкий вес, но при этом достаточно прочна благодаря своей многослойности. Во-вторых, такой вид древесины не поддаётся осадочным воздействиям и деформациям.
Для рамы рекомендуется использовать брус 5х5 см.
Кроме того, понадобятся:
- деревянные штапики;
- клей ПВА;
- саморезы по дереву.
Желательно заранее запастись шпаклевкой, морилкой или антибактериальной пропиткой.
Изготовление короба для деревянного окна
Самым популярным деревом для изготовления оконного короба является дуб, но его стоимость достаточно высока. Поэтому, для первого опыта в этом деле лучше закупаться более дешевыми материалами, например, сосной.
Стоит помнить, что на короб возложена большая «ответственность» – он несёт основную нагрузку окна, поэтому при его сборке нужно тщательно позаботиться о досках: они должны быть хорошо очищены и высушены, а также не иметь рубцов, трещин, торчащих сучков, то есть, быть абсолютно гладкими. Другими словами, подходит только лес первого сорта, остальные варианты даже не стоит рассматривать.
В заготовках нужно сделать паз глубиной около 10-15 мм. Четыре стороны короба соединяются между собой посредством столярного клея. Далее по всем углам дрелью сверлятся отверстия, через которые вставляются деревянные стержни-фиксаторы длиной от 3 см. Чопики нужны для того, чтобы соединённые блоки обрели прочность и плотно зафиксировались под углом 90 градусов.
Короб монтируется таким образом: в стене сверлятся отверстия, в которые вбиваются дюбели, а коробка в зафиксированном состоянии крепится посредством саморезов. Для заполнения щелей используется монтажная пена.

Рис. 2. Пример чертежа для изготовления короба
Изготовление оконной рамы для деревянного окна
Следующий шаг: непосредственно изготовление самой оконной рамы. Для этого понадобится деревянный брус сечением 60*40 мм или больше, это зависит от того, какого размера будет окно. Толщина профиля определяется количеством стёкол, которые будут вставляться в окно. Если в раме предусмотрен монтаж одного стекла, достаточно двух пазов. В случае двуслойного стеклопакета добавляется еще один паз (для закрепления второго стекла). Стёкол в одном окне может насчитываться больше, поэтому для каждого должен быть предусмотрен запасной паз.
Чтобы пропилить профиль, пользуйтесь фрезерным станком. Стекло рекомендуется фиксировать толщиной около 4 мм.
Рама собирается следующим образом:
Все четыре угла досок следует делить наискось на две равные части – 90/2=45 градусов. При соединении досок неподвижность обеспечивается посредством саморезов. Углублять их нужно максимально глубоко.
Подготовка и вставка стёкол
Размеры стекла должны чётко совпадать с размерами проёма для того чтобы не образовывались микрощели, пропускающие холодный воздух с улицы. Поэтому, этап измерения должен проходить щепетильно, с точностью до 0,5 мм. Резать стекло рекомендуется алмазным саморезом, после чего – качественно отполировать края наждачной бумагой.

Рис. 3. Разрез стены для вставки стекол
Во время резки стекла обязательно помните о правилах техники безопасности:
- Надевайте защитные перчатки, чтобы случайно при работе со стеклом не изувечить кожу.
- Наряду с перчатками не пренебрегайте защитными очками: они оберегают глаза от попадания в слизистую строительных микрочастиц и стеклянных крошек.
- Во время работы со стеклом не рекомендуется дышать ртом или разговаривать, так как стеклянные крошки могут осесть на слизистой горла. Это не смертельно страшно, но приносит большой дискомфорт при напряжении голоса и вызывает болезненный кашель.
При нарезании стекла следует пользоваться измерительным прибором, длина которого превышает длину стекла, например, – металлической метровой линейкой. Зафиксировав точку надлома, стекло слегка придавливается рукой до тех пор, пока не послышится звук треска. Готовое стеклянное полотно нужно примерить, предварительно вставив его в проём.
Если размеры полностью совпадают, стекло сверху закрепляется штапиками и фиксируется тонкими гвоздями. В случае вставки двух и более дополнительных стёкол, посередине рамы монтируется вертикальный брус, имеющий идентичные пазы.
Каждая половина окна изготавливается отдельно друг от друга, а одна из них должна иметь более тонкую раму. Она соединяется с основной, посредством навесных петель, таким образом, создается открывающаяся створка. С помощью саморезов к раме крепится вспомогательная ручка, а в вертикальном брусе делается паз для закрывания створки.
Окончательный монтаж деревянного окна
Когда окно полностью готово, его нужно аккуратно вставить в проём и зафиксировать в предварительно подготовленных пазах. Его неподвижность обеспечивается саморезами, вбиваемыми сквозь короб в стену. Для того чтобы сделать это качественно, рекомендуется использовать монтажный пистолет, благодаря которому дюбели резким движением пробивают стену и глубоко в ней залегают.
В случае возникновения отверстий, пропускающих холодный воздух, пользуйтесь монтажной пеной. По окончанию работ производится тщательное оштукатуривание поверхности. Последний штрих – монтаж отлива и крепёж подоконника к окну.
Несколько советов при установке деревянного подоконника:
- Доски, из которых будет состоять подоконник, должны соответствовать тем же требованиям: быть качественно очищенными от сучков, опилок, и быть абсолютно гладкими.
- На дерево следует наносить антисептик, это предотвратит появление грибков и насекомых, которые любят обитать под натуральными материалами.
- Подоконник в длине должен превышать ширину оконного проёма на несколько сантиметров. В среднем данное превышение составляет разницу в 100-200 мм.
- Выступающая часть подоконника не должна в длине превышать 70 мм.
- Желательно конструкцию оббивать войлоком, это придаст больше прочности.
- Для фиксации подоконника нужно использовать безшляпочные гвозди. В случае установления деревянного подоконника и окна в деревянном доме, гвозди забиваются наполовину, а на них насаживаются доски.
- В идеале подоконник должен быть абсолютно горизонтальным, но если вы предусматриваете уклон, то он не должен превышать 1-2 градуса.
Исходя из вышесказанного, не трудно прийти к выводу, что изготовление и установка деревянного окна не представляет собой ничего сложного или непонятного. При наличии свободного времени и всех необходимых инструментов смастерить такой шедевр своими руками – проще простого. А еще из самодельного деревянного окна можно создать настоящее произведение искусства, украсив створки ручной росписью или резьбой.
Как сделать окно из дерева своими руками
В последнее время пластиковые евроокна почти полностью вытеснили деревянные аналоги. Однако последние все еще пользуются спросом, так как они «дышат», к тому же древесина — материал недорогой. Сделать окно для дачи или загородного дома не составит труда, нужно лишь следовать инструкции. Изделие можно изготовить на свой вкус: раздвижным, со ставнями, с необычным подоконником.


Необходимые инструменты
Необходимы следующие инструменты и материалы:


- Молоток.
- Дрель.
- Шуруповерт.
- Стамеска.
- Стеклорез.
- Столярный клей.
- Шлифовальный станок.
- Ножовка.
- Фрезерный станок.
С помощью этих инструментов можно проводить и основные работы, и рассчитать количество необходимо материала. Далее, можно приступать к сооружению короба для окна.
Деревянный короб
Для изготовления короба часто используют сосну, которая отличается доступностью, надежностью и небольшой ценой.


Конечно, это не единственная древесина, из которой можно соорудить конструкцию, есть еще дуб. Он надежнее и служит дольше, чем сосна, однако стоит дороже. Если мастер неопытен, то ему лучше все же не экспериментировать с дорогим материалом.
Стоит помнить, что короб должен быть максимально прочным, ведь именно на него идет основная нагрузка. Сосновые доски должны быть очищены и высушены, они не должны иметь трещин, рубцов и торчащих сучков. Стоит рассматривать дерево только первого сорта, остальные точно не подойдут.
Для изготовления блока нужно следовать инструкции:


- Взять доску с сечением 15Х5 сантиметров.
- Выбрать паз в заготовке в виде буквы Г, глубина паза — 1,5 сантиметра.
- Все части соединяются при помощи столярного клея.
- Затем во всех углах нужно просверлить отверстия, глубина которых не должна превышать 3 сантиметров. В них нужно вставить деревянные штифты.
Короб должен вставляться в стенку таким образом, чтобы не было никаких щелей. Первым делом нужно сделать отверстия, куда затем вставляют анкера или дюбели и прикручивают короб. Щели можно залить монтажной пеной.
Оконная рама
Сделать оконную раму, не уступающую качеством заводским изделиям, порой не под силу даже неплохим мастерам. Все дело в том, что конструкция не должна иметь отклонений, и даже небольшой перекос может нарушить теплоизоляцию. Несмотря на это, можно создать оконную раму из дерева своими руками, но попроще.


Деревянные рамы, выпускаемые в промышленных масштабах, не сильно отличаются от пластиковых вариантов. И там, и там сложная конструкция, которая позволяет раскрывать створки и форточки в нескольких плоскостях. Домашнее изготовление окна включает следующие этапы:
- Подготовка материалов и выбор профиля.
- Монтаж рамы.
- Остекление оконного блока.
Выбор профиля сводится к тому, что предстоит выбрать, какое стекло установить, обычное или стеклопакеты. Каждый из вариантов имеет собственные преимущества: в первом случае это невысокая стоимость, во втором — низкая теплопроводность.


Интересной особенностью стеклопакетов является инертный газ, закачанный производителем между листами. Его концентрация немного снижается со временем, но это не страшно, так как разницы в сохранении тепла не будет видно. Есть и гибридный вариант, когда устанавливаются и обычные окна, и стеклопакеты. Такое самодельное деревянное окно именуют финским. Оно максимально сильно удерживает тепло. Конечно же, самым простым вариантом будет установка пары стекол, между которыми есть прослойка шириной от нескольких сантиметров.
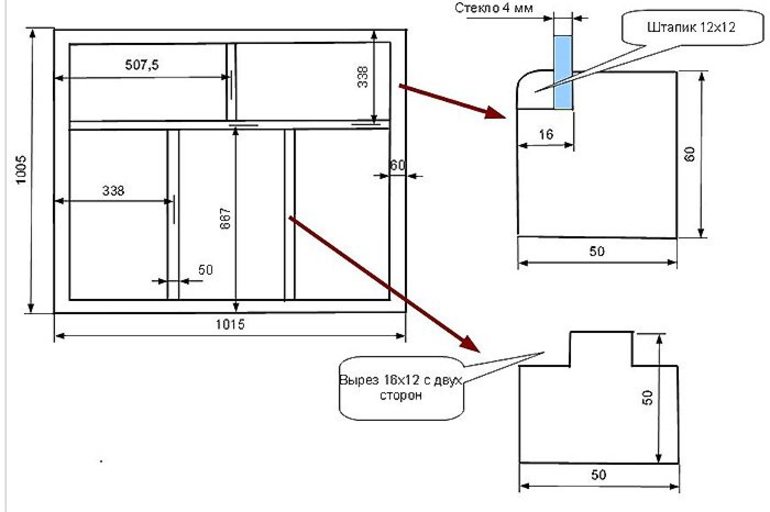
Основным нюансом при изготовлении деревянных рам является сохранение формы и геометрии при монтаже. Справиться с этим помогут заранее заготовленные чертежи. Брус нужно выбирать исходя из толщины остекления будущего окна. Минимально разрешенное сечение бруса — 60Х40 мм. Пазы в брусках делаются при помощи электрорубанка или фрезера. Профессионалы советуют новичкам потренироваться в создании пазов на небольших кусках: сделать пропилы в разных направлениях. Чертеж окна из дерева своими руками:


Перед началом всех процедур нужно тщательно сделать замеры. Если есть возможность доверить эту работу более опытному человеку, то лучше так и сделать, потому что отклонение в пару миллиметров может привести к плохим последствиям. Торцы следуют подпиливать под углом в 45 градусов.
Элементы деревянной рамы собираются на столярный клей. Можно дополнительно придать прочность, просверлив на углах отверстия и вставив туда деревянные стержни. Их тоже смазывают клеем. Чтобы придать прочность, можно на соединяющих элементах выбить паз и установить шпонку. В итоге должна получиться практически монолитная конструкция.


Есть и другой вариант соединения элементов — шип-паз. Однако эта работа довольно трудоемкая, поэтому чаще всего используется первый вариант.
Монтаж стекол
На этом этапе важно провести точный расчет размеров стекла, так как оно должно плотно прилегать к раме. Это позволит снизить теплопроводность окна. Мерить нужно с точностью до миллиметра. Стекло режут стеклорезом, после чего острые края обрабатывают наждачной бумагой.
При проведении этой процедуры важно позаботиться о своей безопасности:


- Работы обязательно должны проводиться в резиновых перчатках, чтобы оградить руки от порезов.
- Глаза нужно защитить очками, так как есть риск попадания стружки или осколков.
- Можно защитить лицо маской.
Осуществление действий стеклореза тоже имеет свои тонкости. Так, движение прибора должно быть плавным, с умеренной степенью нажатия. Если давление на стекло будет слишком малым, то надрез получится некачественным и могут образоваться сколы. Чрезмерное нажатие тоже вредно: можно продавить стекло и пораниться осколками. Для ровного разреза лучше всего использовать линейку. Материал, из которого она сделана разницы не имеет. Если ее нет, то можно применить просто ровную рейку.


После того как работа стеклорезом завершена, стекло отодвигают на край стола и надламывают. Если все было сделано правильно, то оно сломается ровно по траектории движения стеклореза. Таким образом вырезают стекло для всей рамы. Затем можно приступить к замеру стекла: его просто помещают в раму и проверяют, подходит ли оно.
Следующим этапом будет установка стекла в раму. Для этого на деревянные детали наносят герметик. Лучше всего подобрать бесцветный, чтобы окно выглядело идеально. Далее, стекло прикладывается к раме и дается время для высыхания герметика. Спустя некоторое время полотно закрепляется штапиком. Штапик — это треугольная рейка, которое прижимает стекло. Он не только фиксирует стекла, но и прячет шов. Монтировать рейку лучше всего тонкими гвоздями.
Далее, нужно вмонтировать раму в короб. Здесь ничего сложного нет: нужно лишь зафиксировать раму при помощи саморезов. Щели между конструкциями заливают монтажной пеной.
Подготовка подоконника
Одним из этапов установки окна является монтаж подоконника. Материал можно подобрать любой. Однако лучшим вариантом все же будет натуральный материал — дерево. Вот его основные преимущества:


- Материал экологически чист и абсолютно безопасен.
- Отопительные приборы практически не наносят ему вреда, чего нельзя сказать о пластике.
- При использовании нестандартного покрытия можно добиться эксклюзивной расцветки, которая будет радовать глаз.
Основное условие: доска для подоконника должна быть целой, без трещин и сучков. Ее нужно предварительно обработать, осуществить выборку калевок, слезника. Слезники — маленькие желобки с шириной 8-10 мм, глубина выборки достигает 8 мм. Такой желоб делают по нижней части доски, на расстоянии, равном 2 см от лицевой части.


После этого нужно обрезать доску до необходимой длины. Рассчитать все просто: берется ширина проема окна плюс 4 см на каждую из сторон. Можно добавить несколько сантиметров, если нужно придать дополнительное усиление.
Также стоит обратить внимание на выступ внутрь комнаты. Конечно, можно делать подоконник вровень со стеной, но это не очень удобно. Слишком большой выступ делать тоже не стоит. Оптимальное расстояние 6-8 сантиметров. Исключением служит, пожалуй, случай изготовления окна для кухни, там как раз и пригодится широкий выступ.
Установка изделия
Следующий этап — установка подоконника. Чтобы это сделать, сначала придется очистить место монтажа, обить его дранкой и войлоком. Это позволит избежать потери тепла. Сам монтаж ведется с использованием раствора из извести и гипса. Для установки применяют деревянные клинья, затем все заливают раствором.


После того как раствор засохнет, можно укладывать доску. Ее монтируют с нижней части проема. 4 см на каждый конец доски будет достаточно. Это необходимо для укладки конструкции в откосы стены. Если стена каменная, то необходимо очистить борозды и затем подогнать доску. При помощи строительного уровня надо выровнять изделие, не допуская перекосов. Как только доска будет установлена, все зазоры нужно залить гипсовым раствором. Все поврежденные участки стены следует аккуратно оштукатурить согласно общей отделке.
Завершающий шаг — покраска изделия. Покрасить окно совсем несложно. Необходимо лишь помнить о следующем:


- Если окно не было покрашено до сборки, то переплет нужно обработать антисептиком. Особенно нужно следить за обработкой торцов, ведь именно оттуда обычно проникает вредитель.
- Поверхность перед покраской лучше прогрунтовать. Во-первых, грунтовка снижает расход краски, во-вторых, она помогает увеличить срок эксплуатации окна, играя роль антисептика.
- Красить рекомендуется в несколько слоев.
- Снаружи окно красят специальной краской для наружных работ, а вот изнутри можно использовать любую.
Деревянное окно своими руками сделать вполне по силам. Качество его будет не как у фабричной модели, но зато оно обойдется намного дешевле.
Как сделать оконные рамы из дерева своими руками
Изготовить деревянные рамы своими руками весьма сложно, ведь профиль нужно подготовить, строго соблюдая все размеры. Элементы оконной системы должны плотно прилегать друг к другу, только тогда изделие будет герметичным.
Отливы также сложны в изготовлении. Правильно сделать их могут люди, которые имеют опыт работы с деревом. Лучше всего вырезать элементы на специальных станках, тогда окна прослужат долго. Однако станки есть не у всех, поэтому в домашних условиях лучше остановиться на самом простом проекте. Конечно, самодельное изделие не будет герметичным, но для остекления дачи, балкона и летней кухни оно подойдет.
Этап подготовительных работ
Как сделать окна своими руками, затратив минимум сил? Процесс изготовления состоит из следующих этапов:
- Выбор подходящего профиля. Приобретение строительных материалов.
- Изготовление коробки и рамы.
- Установка оконных блоков. Остекление.
На подготовительном этапе нужно будет выбрать стекло. Это может быть обычное листовое, которое хорошо подходит для дачных окон. Кроме того, в деревянные рамы можно установить готовые стеклопакеты.
Каждый из выбранных вариантов имеет свои достоинства. Например, в первом случае есть возможность самостоятельно выбрать и купить дешевый материал. А вот использование стеклопакетов в деревянных рамах отличается тем, что такие окна значительно сократят потери тепла.
Оконные рамы можно сделать из лиственницы. Дуб тоже пользуются популярностью, но обрабатывать его значительно сложнее. Хорошим вариантом станет изготовление конструкций из ангарской сосны. Даже начинающие строители могут работать с клееным брусом, изделия из этого материала прослужат не менее 50 лет.
Следует заранее приобрести чертежи. Самым простым вариантом, который подойдет начинающим строителям, можно назвать изготовление окон с двойной рамой и одинарным остеклением. Для столярных работ потребуются следующие инструменты:
Работа будет выполнена быстрее, если в наличии будут электрорубанок и фреза.
Как сделать окно, да так чтобы оно прослужило долго? Многое зависит от качества материала. Для работы подходит только сухая древесина. Ее следует внимательно осмотреть на строительной базе. Важно, чтобы не было сучков, тогда рама не треснет. Хорошим вариантом станет клееный материал. Для самостоятельного изготовления окна потребуется чертеж, стекло, уголки из металла и столярный клей.
Клееный брус хорош тем, что он практически не поддается деформации. Рама, выполненная из этого материала, не изменит форму даже при высокой влажности. Оконную раму можно сделать из досок 50х150 мм и брусков 50×50 мм. Также все деревянные конструкции обрабатывают антисептиком. Это предотвращает гниение.
Заводской оконный профиль имеет сложное строение, повторить его новичкам очень сложно. Поэтому проще всего использовать самый простой проект. Например, для создания оконного профиля может быть использована фанера. Необходимо скрепить 4 полосы в виде прямоугольника. Для изготовления профиля собирают несколько прямоугольников. Так можно сделать глухую раму или окно с 3 или 2 стеклами.
Для изготовления рамы с 1 стеклом потребуется 8 полос из фанеры, они образуют 2 прямоугольника. Полосы 2 слоя делают меньшей ширины. Для соединения деталей используют саморезы по дереву. Все части конструкции промазывают столярным клеем, тогда рама прослужит много лет.
Как сделать коробку из досок
Количество материала, который вам потребуется, зависит от размера окон. Сначала нужно сделать коробку, на нее будет установлена рама. Коробка защищает ее от деформации при усадке здания. Все элементы изготавливаются из сухой доски, она должна быть без трещин. Ее обрабатывают наждачной бумагой, это позволяет убрать мелкие заусенцы. Потом наносят разметку и вырезают части конструкции.
В процессе выполнения работ важно обращать внимание на внешний периметр изделия. Он должен быть примерно на 3 см меньше размеров оконного проема в стене. Далее следует посмотреть на внутренний периметр, он должен быть примерно на 3 мм больше размера рамы.
Все элементы коробки соединяют по принципу паз-шип. Сделать его можно фрезой или ножовкой. Для работы вам потребуются стамеска и киянка. Шип делают на той части, которую планируют установить в вертикальном положении. Паз вырезают на элементе, который будет установлен в оконном проеме в горизонтальном виде.
Далее нужно взять наждачную бумагу и тщательно зачистить все элементы. Коробку собирают на полу или другой ровной поверхности. Шип и паз смазывают столярным клеем, это повышает прочность монтажа. Необходимо следить за тем, чтобы все части окна были соединены под углом 90°. Для этого используется металлический уголок.
Для того чтобы придать конструкции большую жесткость, в коробке по диагонали просверливают 2 отверстия. Это нужно сделать в тех местах, где происходит крепление по типу шип-паз. При помощи киянки в них вставляют штифты из дерева (так фиксируется прямой угол). Все штифты предварительно смазывают столярным клеем. Он должен высохнуть, поэтому коробку нужно оставить на некоторое время. На следующем этапе осуществляется изготовление оконной рамы.
Сборка оконной рамы
Размер окна определяет его конфигурацию. Решив впервые сделать оконную раму из дерева, следует учитывать, что проще всего изготовить стандартные изделия. Чтобы изделие было качественным и прослужило долго, необходимо купить клееный брус из сосны. Он менее подвержен кручению, что является неоспоримым преимуществом данного материала.
Важно правильно выбрать вид остекления. Оно может быть двойным или одинарным. Первое чаще всего применяется в районах с суровым климатом, такие окна устанавливают в домах. Для летней кухни и балкона достаточно сделать окна с одинарным остеклением. Опытные мастера изготавливают их за 1 день.
Работа начинается с разметки брусков, на них нужно выбрать пазы. Проще всего это сделать фрезой, ее устанавливают на электрическую дрель. Нижние пазы необходимы для того, чтобы установить раму в профиль коробки, а верхние понадобятся для монтажа стекла. Места соединения следует проклеить столярным клеем.
Собирать оконную раму следует в соответствии с чертежом, процесс похож на сборку коробки. Когда работа будет завершена, оконную раму необходимо положить на пол до полного высыхания клея.
Для того, чтобы правильно выполнить монтаж сделанных своими руками окон, потребуется заранее вырезать отверстия в стене. Важно убрать строительный мусор и грязь.
В стенах необходимо просверлить отверстия, впоследствии в них будут помещены дюбеля. Шаг между отверстиями не должен превышать 80 мм.
Наиболее качественное крепление достигается за счет использования саморезов. Когда короб будет установлен, все щели следует “задуть” монтажной пеной. Можно использовать другие теплоизолирующие материалы.
При установке окон важно соблюдать геометрию. Углы должны быть строго 90°, отклонение не более 1 мм из расчета на 1 м.
Резка стекла.
- Материал укладывают на ровную поверхность без бугорков. Это очень важный момент, ведь на неровной поверхности хрупкий материал может треснуть. Для работы подходит стол.
- Делается разметка. Затем на стекло необходимо положить линейку.
- Стеклорез следует прижать к материалу, а потом провести им по стеклу вдоль линейки. На материале должна остаться сплошная царапина.
- Стекло сдвигают на край стола, размещая так, чтобы линия отреза совпала с краем.
- Часть стекла, которая лежит на столе, следует придерживать одной рукой, а другой нужно слегка надавить на часть, висящую над полом. Нажим следует усиливать до тех пор, пока стекло не разломится по прочерченной стеклорезом линии.
Лучше всего заранее потренироваться на старом куске стекла, а потом уже вырезать новое.
Установка стекла.
- Лист помещается в раму. Потом вынимается, по его краям наносится силиконовый герметик. Стекло устанавливают на место.
- Фиксация штапика. Каждый элемент рамы необходимо замерить. Штапик нарезают а концы выпиливают под углом 45°.
- Силиконовый герметик наносят на стекло в тех местах, где будет установлен штапик, который затем прибивают мелкими гвоздями.
В результате использования силиконового герметика и штапиков стекло будет надежно зафиксировано в раме и не будет щелей. Устанавливая окна, важно следить за тем, чтобы все щели были задуты монтажной пеной. Если их не убрать, то образуются мостики холода.
Работая со стеклом и деревом, не следует забывать о защите. Руки закрывают перчатками, а глаза при резке стекла – специальными очками.
Устанавливая готовый стеклопакет в раму, не нужно забывать о монтаже подоконника. Он может быть выполнен из разных материалов. Когда окна будут надежно зафиксированы в проеме, их покрывают грунтовкой, а потом красят. Со стороны комнаты может быть использована любая краска, а вот для окрашивания стороны, выходящей на улицу, стоит использовать краску, устойчивую к перепадам температуры.
Заключение
Окно из дерева своими руками можно изготовить за несколько дней, если выбрать самую простую модель. Важно правильно снять размеры. Чтобы не было ошибок, стоит ориентироваться на старые рамы. Рамы делают из хорошо просушенной древесины. Обычно в строительстве используется сосна, но можно использовать дуб и клееный брус.